Beschikbaar
Frederik Hendrikstraat 27
8606 EE Sneek
€ 200.000 K.K.
Foto's 24 Video's 0 Plattegrond 2 Alle media tonen

Omschrijving

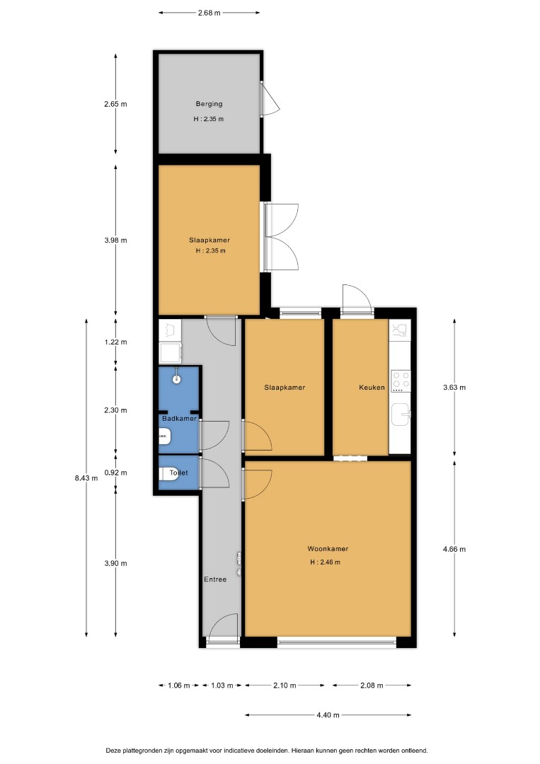
Verzorgde benedenwoning met diepe tuin en vrij uitzicht op loopafstand van het centrum van Sneek. In een rustige en groene straat vlak bij het centrum van Sneek staat deze benedenwoning met een diepe achtertuin, twee slaapkamers en vrij uitzicht aan de voorzijde. De woning is netjes onderhouden en direct te betrekken. Indeling: Entree/hal met meterkast en toegang tot de verschillende ruimtes. De lichte en ruime woonkamer bevindt zich aan de voorzijde en biedt vrij uitzicht over het groen. Aan de achterzijde ligt de dichte keuken met keukenopstelling en toegang tot de tuin. De badkamer beschikt over een douche, wastafel en witgoedaansluiting. De woning telt twee slaapkamers, waarvan één aan de voorzijde en één aan de tuinzijde welke openslaande deuren heeft richting het terras. Buitenruimte: De diepe achtertuin is voorzien van een achterom en een aangebouwde houten berging. Ideaal voor tuinliefhebbers of extra opbergruimte. De ligging aan de achterzijde biedt veel privacy en mogelijkheden voor een fijn terras. Aan de voorzijde kunt u heerlijk genieten van de ochtendzon. Bijzonderheden: - Benedenwoning met eigen tuin en achterom - Twee slaapkamers - Vrij uitzicht aan de voorzijde - Verwarming middels HR-combiketel (2019) - Rustige ligging, maar toch nabij het centrum - Houten berging in de achtertuin - Voldoende parkeergelegenheid in de straat Deze woning is ideaal voor starters, alleenstaanden of senioren die gelijkvloers willen wonen, met alle voorzieningen van het centrum van Sneek op loopafstand.

De woning

Plaats Sneek
Adres Frederik Hendrikstraat 27
Woningtype Benedenwoning
Bouwjaar 1937
Vraagprijs € 200.000 k.k
Woonoppervlakte 63 m2
Perceeloppervlakte 137 m2
Energielabel D
Aantal kamers 3
Slaapkamers 2
Badkamers 1
Aan het water nee
Tuin ja
Terras/balkon ja
Garage nee
Lift nee
Kelder nee
Open haard nee

Omschrijving

Verzorgde benedenwoning met diepe tuin en vrij uitzicht op loopafstand van het centrum van Sneek. In een rustige en groene straat vlak bij het centrum van Sneek staat deze benedenwoning met een diepe achtertuin, twee slaapkamers en vrij uitzicht aan de voorzijde. De woning is netjes onderhouden en direct te betrekken. Indeling: Entree/hal met meterkast en toegang tot de verschillende ruimtes. De lichte en ruime woonkamer bevindt zich aan de voorzijde en biedt vrij uitzicht over het groen. Aan de achterzijde ligt de dichte keuken met keukenopstelling en toegang tot de tuin. De badkamer beschikt over een douche, wastafel en witgoedaansluiting. De woning telt twee slaapkamers, waarvan één aan de voorzijde en één aan de tuinzijde welke openslaande deuren heeft richting het terras. Buitenruimte: De diepe achtertuin is voorzien van een achterom en een aangebouwde houten berging. Ideaal voor tuinliefhebbers of extra opbergruimte. De ligging aan de achterzijde biedt veel privacy en mogelijkheden voor een fijn terras. Aan de voorzijde kunt u heerlijk genieten van de ochtendzon. Bijzonderheden: - Benedenwoning met eigen tuin en achterom - Twee slaapkamers - Vrij uitzicht aan de voorzijde - Verwarming middels HR-combiketel (2019) - Rustige ligging, maar toch nabij het centrum - Houten berging in de achtertuin - Voldoende parkeergelegenheid in de straat Deze woning is ideaal voor starters, alleenstaanden of senioren die gelijkvloers willen wonen, met alle voorzieningen van het centrum van Sneek op loopafstand.

Omschrijving

Verzorgde benedenwoning met diepe tuin en vrij uitzicht op loopafstand van het centrum van Sneek. In een rustige en groene straat vlak bij het centrum van Sneek staat deze benedenwoning met een diepe achtertuin, twee slaapkamers en vrij uitzicht aan de voorzijde. De woning is netjes onderhouden en direct te betrekken. Indeling: Entree/hal met meterkast en toegang tot de verschillende ruimtes. De lichte en ruime woonkamer bevindt zich aan de voorzijde en biedt vrij uitzicht over het groen. Aan de achterzijde ligt de dichte keuken met keukenopstelling en toegang tot de tuin. De badkamer beschikt over een douche, wastafel en witgoedaansluiting. De woning telt twee slaapkamers, waarvan één aan de voorzijde en één aan de tuinzijde welke openslaande deuren heeft richting het terras. Buitenruimte: De diepe achtertuin is voorzien van een achterom en een aangebouwde houten berging. Ideaal voor tuinliefhebbers of extra opbergruimte. De ligging aan de achterzijde biedt veel privacy en mogelijkheden voor een fijn terras. Aan de voorzijde kunt u heerlijk genieten van de ochtendzon. Bijzonderheden: - Benedenwoning met eigen tuin en achterom - Twee slaapkamers - Vrij uitzicht aan de voorzijde - Verwarming middels HR-combiketel (2019) - Rustige ligging, maar toch nabij het centrum - Houten berging in de achtertuin - Voldoende parkeergelegenheid in de straat Deze woning is ideaal voor starters, alleenstaanden of senioren die gelijkvloers willen wonen, met alle voorzieningen van het centrum van Sneek op loopafstand.

Kenmerken

De woning

Plaats Sneek
Adres Frederik Hendrikstraat 27
Woningtype Benedenwoning
Bouwjaar 1937
Vraagprijs € 200.000 k.k
Woonoppervlakte 63 m2
Perceeloppervlakte 137 m2
Energielabel D
Aantal kamers 3
Slaapkamers 2
Badkamers 1
Aan het water nee
Tuin ja
Terras/balkon ja
Garage nee
Lift nee
Kelder nee
Open haard nee

Woning op de kaart

In de buurt

Maaltijden bezorgdienst nee
Basisschool 100 meter
Sportschool 160 meter
Speelvoorziening 270 meter
Kinderdagverblijf 290 meter
Parkeerplaats 340 meter
Huisarts 420 meter
Gebedshuis 720 meter
Openbaar vervoer 740 meter
Pinautomaat 750 meter
Centrum 790 meter
Tandarts 820 meter
Supermarkt 830 meter
Restaurant 860 meter
Zwembad 1,4 kilometer
Natuurgebied 1,6 kilometer
Snelweg 2 kilometer
Ziekenhuis 2,3 kilometer
Strand 5,6 kilometer
Recreatiemeer 11,2 kilometer

Woning op de kaart

Onze partners
Funda (2)
Pararius Nl (1)
Flanderijn (1)
Easy Nuts
Geldxpert Hypotheken Verzekeringen
Huurcheck Nederland
Kuiper Verzekeringen
MYN Vastgoedstylist
Phogatropy
Schermafbeelding 2022 06 15 Om 09.13.04
Sancus Bouw & Infra Met Ondertitel
File 1566990895713