Beschikbaar
Paulus Potterstraat 43
8932 KK Leeuwarden
€ 269.500 K.K.
Foto's 20 Video's 0 Plattegrond 6 Alle media tonen

Omschrijving

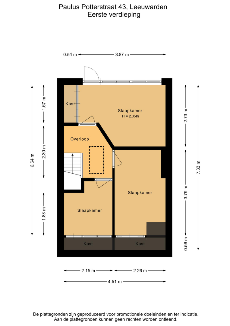
In de geliefde wijk Huizum-West staat deze charmante starterswoning aan de Paulus Potterstraat 43. Een ideale plek voor wie voor het eerst een woning wil kopen en op zoek is naar een fijne, rustige woonomgeving met alles binnen handbereik. Een huis met mogelijkheden: deze woning biedt een mooie basis om jouw eigen thuis van te maken. Of je nu direct wilt wonen of stap voor stap wilt moderniseren: hier kun je alle kanten op. De woning heeft een praktische indeling en voelt direct vertrouwd aan. In 2025 is aan de achterzijde een nieuw kunststof kozijn geplaatst in de dakkapel, de overige houten kozijnen waren al grotendeels vervangen door onderhoudsarme kunststof kozijnen (alleen de voordeur is nog origineel), waardoor schilderwerk tot een minimum is beperkt. Wat deze woning zo aantrekkelijk maakt: - Lichte en gezellige woonkamer met openslaande deuren naar de tuin - Keuken in neutrale stijl met o.a. gaskookplaat en afzuigkap - Drie slaapkamers op de verdieping – ideaal voor logees, werk aan huis of gezinsleven - Badkamer op de begane grond met douche, wastafel en toilet - Besloten achtertuin - Berging aanwezig voor fietsen en tuinspullen - Locatie: Huizum-West – de perfecte balans - Bijna volledig voorzien va kunststof kozijnen. Wonen in Huizum-West betekent wonen in een rustige straat met alle voorzieningen binnen handbereik. Supermarkten, scholen, kinderopvang en bushaltes liggen op loopafstand. Binnen enkele minuten fietsen bereik je het centrum van Leeuwarden, het station of het Van Harinxmakanaal voor een wandeling langs het water. Bovendien zijn uitvalswegen eenvoudig bereikbaar. De woning staat in een fijne straat, met een buurt die leeft en toch rust biedt. Ben jij klaar voor de volgende stap? Dan nodigen we je van harte uit voor een bezichtiging. Nieuwsgierig geworden? Maak snel een afspraak via het contactformulier of bel ons kantoor. We leiden je graag rond en vertellen je alles over deze fijne woning in Huizum-West!

De woning

Plaats Leeuwarden
Adres Paulus Potterstraat 43
Woningtype Tussenwoning
Bouwjaar 1931
Vraagprijs € 269.500 k.k
Woonoppervlakte 80 m2
Perceeloppervlakte 96 m2
Energielabel C
Aantal kamers 4
Slaapkamers 3
Badkamers 1
Aan het water nee
Tuin ja
Terras/balkon ja
Garage nee
Lift nee
Kelder nee
Open haard nee

Omschrijving

In de geliefde wijk Huizum-West staat deze charmante starterswoning aan de Paulus Potterstraat 43. Een ideale plek voor wie voor het eerst een woning wil kopen en op zoek is naar een fijne, rustige woonomgeving met alles binnen handbereik. Een huis met mogelijkheden: deze woning biedt een mooie basis om jouw eigen thuis van te maken. Of je nu direct wilt wonen of stap voor stap wilt moderniseren: hier kun je alle kanten op. De woning heeft een praktische indeling en voelt direct vertrouwd aan. In 2025 is aan de achterzijde een nieuw kunststof kozijn geplaatst in de dakkapel, de overige houten kozijnen waren al grotendeels vervangen door onderhoudsarme kunststof kozijnen (alleen de voordeur is nog origineel), waardoor schilderwerk tot een minimum is beperkt. Wat deze woning zo aantrekkelijk maakt: - Lichte en gezellige woonkamer met openslaande deuren naar de tuin - Keuken in neutrale stijl met o.a. gaskookplaat en afzuigkap - Drie slaapkamers op de verdieping – ideaal voor logees, werk aan huis of gezinsleven - Badkamer op de begane grond met douche, wastafel en toilet - Besloten achtertuin - Berging aanwezig voor fietsen en tuinspullen - Locatie: Huizum-West – de perfecte balans - Bijna volledig voorzien va kunststof kozijnen. Wonen in Huizum-West betekent wonen in een rustige straat met alle voorzieningen binnen handbereik. Supermarkten, scholen, kinderopvang en bushaltes liggen op loopafstand. Binnen enkele minuten fietsen bereik je het centrum van Leeuwarden, het station of het Van Harinxmakanaal voor een wandeling langs het water. Bovendien zijn uitvalswegen eenvoudig bereikbaar. De woning staat in een fijne straat, met een buurt die leeft en toch rust biedt. Ben jij klaar voor de volgende stap? Dan nodigen we je van harte uit voor een bezichtiging. Nieuwsgierig geworden? Maak snel een afspraak via het contactformulier of bel ons kantoor. We leiden je graag rond en vertellen je alles over deze fijne woning in Huizum-West!

Omschrijving

In de geliefde wijk Huizum-West staat deze charmante starterswoning aan de Paulus Potterstraat 43. Een ideale plek voor wie voor het eerst een woning wil kopen en op zoek is naar een fijne, rustige woonomgeving met alles binnen handbereik. Een huis met mogelijkheden: deze woning biedt een mooie basis om jouw eigen thuis van te maken. Of je nu direct wilt wonen of stap voor stap wilt moderniseren: hier kun je alle kanten op. De woning heeft een praktische indeling en voelt direct vertrouwd aan. In 2025 is aan de achterzijde een nieuw kunststof kozijn geplaatst in de dakkapel, de overige houten kozijnen waren al grotendeels vervangen door onderhoudsarme kunststof kozijnen (alleen de voordeur is nog origineel), waardoor schilderwerk tot een minimum is beperkt. Wat deze woning zo aantrekkelijk maakt: - Lichte en gezellige woonkamer met openslaande deuren naar de tuin - Keuken in neutrale stijl met o.a. gaskookplaat en afzuigkap - Drie slaapkamers op de verdieping – ideaal voor logees, werk aan huis of gezinsleven - Badkamer op de begane grond met douche, wastafel en toilet - Besloten achtertuin - Berging aanwezig voor fietsen en tuinspullen - Locatie: Huizum-West – de perfecte balans - Bijna volledig voorzien va kunststof kozijnen. Wonen in Huizum-West betekent wonen in een rustige straat met alle voorzieningen binnen handbereik. Supermarkten, scholen, kinderopvang en bushaltes liggen op loopafstand. Binnen enkele minuten fietsen bereik je het centrum van Leeuwarden, het station of het Van Harinxmakanaal voor een wandeling langs het water. Bovendien zijn uitvalswegen eenvoudig bereikbaar. De woning staat in een fijne straat, met een buurt die leeft en toch rust biedt. Ben jij klaar voor de volgende stap? Dan nodigen we je van harte uit voor een bezichtiging. Nieuwsgierig geworden? Maak snel een afspraak via het contactformulier of bel ons kantoor. We leiden je graag rond en vertellen je alles over deze fijne woning in Huizum-West!

Kenmerken

De woning

Plaats Leeuwarden
Adres Paulus Potterstraat 43
Woningtype Tussenwoning
Bouwjaar 1931
Vraagprijs € 269.500 k.k
Woonoppervlakte 80 m2
Perceeloppervlakte 96 m2
Energielabel C
Aantal kamers 4
Slaapkamers 3
Badkamers 1
Aan het water nee
Tuin ja
Terras/balkon ja
Garage nee
Lift nee
Kelder nee
Open haard nee

Woning op de kaart

In de buurt

Maaltijden bezorgdienst ja
Parkeerplaats 20 meter
Kinderdagverblijf 30 meter
Speelvoorziening 240 meter
Sportschool 330 meter
Tandarts 350 meter
Basisschool 430 meter
Supermarkt 460 meter
Centrum 470 meter
Restaurant 480 meter
Gebedshuis 510 meter
Huisarts 580 meter
Openbaar vervoer 590 meter
Pinautomaat 810 meter
Ziekenhuis 960 meter
Snelweg 1,3 kilometer
Zwembad 3,1 kilometer
Recreatiemeer 5,1 kilometer
Strand 5,1 kilometer
Natuurgebied 5,3 kilometer

Woning op de kaart

Onze partners
Funda (2)
Pararius Nl (1)
Flanderijn (1)
Easy Nuts
Geldxpert Hypotheken Verzekeringen
Huurcheck Nederland
Kuiper Verzekeringen
MYN Vastgoedstylist
Phogatropy
Schermafbeelding 2022 06 15 Om 09.13.04
Sancus Bouw & Infra Met Ondertitel
File 1566990895713