Verkocht onder voorbehoud
Golfpad 16
8445 SN Heerenveen
€ 795.000 K.K.
Foto's 49 Video's 0 Plattegrond 6 Alle media tonen

Omschrijving

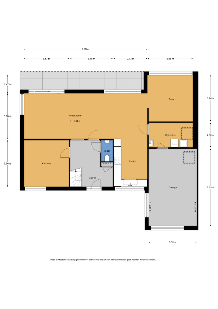
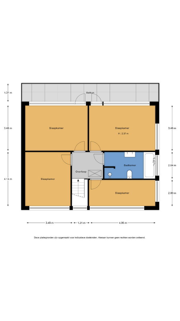
Vrijstaand wonen op een unieke plek aan het Golfpad in Heerenveen. Rust, ruimte en comfort komen samen in deze royale vrijstaande villa aan het Golfpad 16 in Heerenveen. Met een perceel van maar liefst 1.232 m² eigen grond, een zonnige tuin op het zuiden en een kantoor op de begane grond is dit een woning waar het aan niets ontbreekt. Gelegen in de geliefde woonwijk Het Heidemeer, te midden van water, natuur en met de golfbaan als buurman, woon je hier in een van de mooiste hoekjes van Heerenveen. Deze ruime tuin met aangrenzend bos is vormgegeven als een natuurlijke bostuin, waar ecologie en biodiversiteit centraal staan. Er wordt bewust onderhoud gepleegd zonder gebruik van bestrijdingsmiddelen. Dankzij deze aanpak is de tuin een levendig toevluchtsoord geworden voor allerlei dieren. Zo kun je hier regelmatig eekhoorns, egels, kikkers, salamanders en hazelwormen aantreffen, evenals een rijke variatie aan vogels – maar liefst 24 soorten zijn waargenomen. Wooncomfort met volop mogelijkheden: De woning is uitstekend onderhouden en van alle gemakken voorzien. Binnen geniet je van een ruime woonkamer met veel lichtinval en direct tuincontact dankzij maar liefst twee schuifpuien naar het terras. De aangrenzende serre biedt een fijne extra ruimte die flexibel inzetbaar is: als tv-kamer, speelruimte of zithoek. Zowel de woonkamer alsook de serre zijn voorzien van een eikenhouten tapis-vloer. Aan de voorzijde van de woning is een kantoor gerealiseerd, ideaal voor thuiswerkers, of voor een extra slaapkamer op de begane grond. De halfopen keuken is voorzien van vloerverwarming en is praktisch ingericht met diverse inbouwapparatuur en biedt voldoende werkruimte voor kookliefhebbers. Via de keuken loop je door naar de bijkeuken, met aansluitingen voor wasmachine/droger en extra bergruimte. De inpandige garage is bereikbaar vanuit huis en beschikt over een elektrische bedienbare deur (Hörmann) én een handige bergzolder. Ruime bovenverdieping: Op de eerste verdieping bevinden zich vier goed bemeten (slaap)kamers, waarvan twee toegang bieden tot het zonnige balkon aan de achterzijde. De verdieping beschikt over een badkamer met vloerverwarming, een douche met Sunshower, een ligbad, een wastafel en toilet. Via een vlizotrap is de zolderverdieping bereikbaar, perfect als extra bergruimte. Ook hier voldoende daglicht met de twee Velux dakramen. Volop privacy, zon en ruimte rondom de woning: De fraai aangelegde tuin rondom de woning is met veel zorg ontworpen en biedt door de gunstige ligging op het zuiden volop zonuren, van de vroege ochtend tot in de avond. De woning staat volledig vrij op de kavel, waardoor je aan beide zijden ruimte hebt om gemakkelijk rondom het huis te lopen of met de fiets of container achterom te komen. De tuin is heerlijk beschut en biedt veel privacy, ideaal om te ontspannen, te tuinieren of kinderen veilig te laten spelen. Achterin de tuin bevindt zich een vrijstaande houten berging, perfect voor het opbergen van fietsen, tuingereedschap of andere spullen. Dankzij het royale perceel zijn er bovendien volop mogelijkheden om extra terrassen, een veranda, speeltoestellen of zelfs een tuinkantoor te realiseren. Kortom: een ideale tuin die zich aanpast aan jouw woonwensen, of je nu houdt van zonnen, buiten eten of gewoon lekker rustig genieten van het groen. Ligging & omgeving: Woonwijk Het Heidemeer staat bekend om de combinatie van natuurlijke rust en stedelijke nabijheid. Direct aan de wijk ligt een 9-holes golfbaan, het Heidemeerstrand en een prachtig wandelgebied. Daarnaast liggen sportfaciliteiten zoals Thialf, padelbanen en fitness op loopafstand. Het centrum van Heerenveen, basisscholen, uitvalswegen en winkels zijn binnen enkele minuten bereikbaar. Bijzonderheden: - Bouwjaar: ca. 1995 - Perceeloppervlakte: 1.232 m² - Woonoppervlakte: ca. 160 m² - 4 slaapkamers en 1 badkamer - Inpandige garage + bergzolder - Kantoor op begane grond - Serre/extra living op begane grond - Vloerverwarming in de keuken en de badkamer - Waterontharder 'Aquacell' in de meterkast - Beschutte tuin op het zuiden - Uitstekende locatie in gewilde wijk. Ben je op zoek naar een comfortabele en ruime woning op een unieke locatie in Heerenveen? Dan is Golfpad 16 absoluut een bezichtiging waard. Neem contact met ons op voor een vrijblijvende rondleiding. Wij laten je graag zien wat deze woning allemaal te bieden heeft!

De woning

Plaats Heerenveen
Adres Golfpad 16
Woningtype Vrijstaand
Bouwjaar 1996
Vraagprijs € 795.000 k.k
Woonoppervlakte 173 m2
Perceeloppervlakte 1232 m2
Energielabel B
Aantal kamers 7
Slaapkamers 4
Badkamers 1
Aan het water nee
Tuin ja
Terras/balkon ja
Garage ja
Lift nee
Kelder nee
Open haard nee

Omschrijving

Vrijstaand wonen op een unieke plek aan het Golfpad in Heerenveen. Rust, ruimte en comfort komen samen in deze royale vrijstaande villa aan het Golfpad 16 in Heerenveen. Met een perceel van maar liefst 1.232 m² eigen grond, een zonnige tuin op het zuiden en een kantoor op de begane grond is dit een woning waar het aan niets ontbreekt. Gelegen in de geliefde woonwijk Het Heidemeer, te midden van water, natuur en met de golfbaan als buurman, woon je hier in een van de mooiste hoekjes van Heerenveen. Deze ruime tuin met aangrenzend bos is vormgegeven als een natuurlijke bostuin, waar ecologie en biodiversiteit centraal staan. Er wordt bewust onderhoud gepleegd zonder gebruik van bestrijdingsmiddelen. Dankzij deze aanpak is de tuin een levendig toevluchtsoord geworden voor allerlei dieren. Zo kun je hier regelmatig eekhoorns, egels, kikkers, salamanders en hazelwormen aantreffen, evenals een rijke variatie aan vogels – maar liefst 24 soorten zijn waargenomen. Wooncomfort met volop mogelijkheden: De woning is uitstekend onderhouden en van alle gemakken voorzien. Binnen geniet je van een ruime woonkamer met veel lichtinval en direct tuincontact dankzij maar liefst twee schuifpuien naar het terras. De aangrenzende serre biedt een fijne extra ruimte die flexibel inzetbaar is: als tv-kamer, speelruimte of zithoek. Zowel de woonkamer alsook de serre zijn voorzien van een eikenhouten tapis-vloer. Aan de voorzijde van de woning is een kantoor gerealiseerd, ideaal voor thuiswerkers, of voor een extra slaapkamer op de begane grond. De halfopen keuken is voorzien van vloerverwarming en is praktisch ingericht met diverse inbouwapparatuur en biedt voldoende werkruimte voor kookliefhebbers. Via de keuken loop je door naar de bijkeuken, met aansluitingen voor wasmachine/droger en extra bergruimte. De inpandige garage is bereikbaar vanuit huis en beschikt over een elektrische bedienbare deur (Hörmann) én een handige bergzolder. Ruime bovenverdieping: Op de eerste verdieping bevinden zich vier goed bemeten (slaap)kamers, waarvan twee toegang bieden tot het zonnige balkon aan de achterzijde. De verdieping beschikt over een badkamer met vloerverwarming, een douche met Sunshower, een ligbad, een wastafel en toilet. Via een vlizotrap is de zolderverdieping bereikbaar, perfect als extra bergruimte. Ook hier voldoende daglicht met de twee Velux dakramen. Volop privacy, zon en ruimte rondom de woning: De fraai aangelegde tuin rondom de woning is met veel zorg ontworpen en biedt door de gunstige ligging op het zuiden volop zonuren, van de vroege ochtend tot in de avond. De woning staat volledig vrij op de kavel, waardoor je aan beide zijden ruimte hebt om gemakkelijk rondom het huis te lopen of met de fiets of container achterom te komen. De tuin is heerlijk beschut en biedt veel privacy, ideaal om te ontspannen, te tuinieren of kinderen veilig te laten spelen. Achterin de tuin bevindt zich een vrijstaande houten berging, perfect voor het opbergen van fietsen, tuingereedschap of andere spullen. Dankzij het royale perceel zijn er bovendien volop mogelijkheden om extra terrassen, een veranda, speeltoestellen of zelfs een tuinkantoor te realiseren. Kortom: een ideale tuin die zich aanpast aan jouw woonwensen, of je nu houdt van zonnen, buiten eten of gewoon lekker rustig genieten van het groen. Ligging & omgeving: Woonwijk Het Heidemeer staat bekend om de combinatie van natuurlijke rust en stedelijke nabijheid. Direct aan de wijk ligt een 9-holes golfbaan, het Heidemeerstrand en een prachtig wandelgebied. Daarnaast liggen sportfaciliteiten zoals Thialf, padelbanen en fitness op loopafstand. Het centrum van Heerenveen, basisscholen, uitvalswegen en winkels zijn binnen enkele minuten bereikbaar. Bijzonderheden: - Bouwjaar: ca. 1995 - Perceeloppervlakte: 1.232 m² - Woonoppervlakte: ca. 160 m² - 4 slaapkamers en 1 badkamer - Inpandige garage + bergzolder - Kantoor op begane grond - Serre/extra living op begane grond - Vloerverwarming in de keuken en de badkamer - Waterontharder 'Aquacell' in de meterkast - Beschutte tuin op het zuiden - Uitstekende locatie in gewilde wijk. Ben je op zoek naar een comfortabele en ruime woning op een unieke locatie in Heerenveen? Dan is Golfpad 16 absoluut een bezichtiging waard. Neem contact met ons op voor een vrijblijvende rondleiding. Wij laten je graag zien wat deze woning allemaal te bieden heeft!

Omschrijving

Vrijstaand wonen op een unieke plek aan het Golfpad in Heerenveen. Rust, ruimte en comfort komen samen in deze royale vrijstaande villa aan het Golfpad 16 in Heerenveen. Met een perceel van maar liefst 1.232 m² eigen grond, een zonnige tuin op het zuiden en een kantoor op de begane grond is dit een woning waar het aan niets ontbreekt. Gelegen in de geliefde woonwijk Het Heidemeer, te midden van water, natuur en met de golfbaan als buurman, woon je hier in een van de mooiste hoekjes van Heerenveen. Deze ruime tuin met aangrenzend bos is vormgegeven als een natuurlijke bostuin, waar ecologie en biodiversiteit centraal staan. Er wordt bewust onderhoud gepleegd zonder gebruik van bestrijdingsmiddelen. Dankzij deze aanpak is de tuin een levendig toevluchtsoord geworden voor allerlei dieren. Zo kun je hier regelmatig eekhoorns, egels, kikkers, salamanders en hazelwormen aantreffen, evenals een rijke variatie aan vogels – maar liefst 24 soorten zijn waargenomen. Wooncomfort met volop mogelijkheden: De woning is uitstekend onderhouden en van alle gemakken voorzien. Binnen geniet je van een ruime woonkamer met veel lichtinval en direct tuincontact dankzij maar liefst twee schuifpuien naar het terras. De aangrenzende serre biedt een fijne extra ruimte die flexibel inzetbaar is: als tv-kamer, speelruimte of zithoek. Zowel de woonkamer alsook de serre zijn voorzien van een eikenhouten tapis-vloer. Aan de voorzijde van de woning is een kantoor gerealiseerd, ideaal voor thuiswerkers, of voor een extra slaapkamer op de begane grond. De halfopen keuken is voorzien van vloerverwarming en is praktisch ingericht met diverse inbouwapparatuur en biedt voldoende werkruimte voor kookliefhebbers. Via de keuken loop je door naar de bijkeuken, met aansluitingen voor wasmachine/droger en extra bergruimte. De inpandige garage is bereikbaar vanuit huis en beschikt over een elektrische bedienbare deur (Hörmann) én een handige bergzolder. Ruime bovenverdieping: Op de eerste verdieping bevinden zich vier goed bemeten (slaap)kamers, waarvan twee toegang bieden tot het zonnige balkon aan de achterzijde. De verdieping beschikt over een badkamer met vloerverwarming, een douche met Sunshower, een ligbad, een wastafel en toilet. Via een vlizotrap is de zolderverdieping bereikbaar, perfect als extra bergruimte. Ook hier voldoende daglicht met de twee Velux dakramen. Volop privacy, zon en ruimte rondom de woning: De fraai aangelegde tuin rondom de woning is met veel zorg ontworpen en biedt door de gunstige ligging op het zuiden volop zonuren, van de vroege ochtend tot in de avond. De woning staat volledig vrij op de kavel, waardoor je aan beide zijden ruimte hebt om gemakkelijk rondom het huis te lopen of met de fiets of container achterom te komen. De tuin is heerlijk beschut en biedt veel privacy, ideaal om te ontspannen, te tuinieren of kinderen veilig te laten spelen. Achterin de tuin bevindt zich een vrijstaande houten berging, perfect voor het opbergen van fietsen, tuingereedschap of andere spullen. Dankzij het royale perceel zijn er bovendien volop mogelijkheden om extra terrassen, een veranda, speeltoestellen of zelfs een tuinkantoor te realiseren. Kortom: een ideale tuin die zich aanpast aan jouw woonwensen, of je nu houdt van zonnen, buiten eten of gewoon lekker rustig genieten van het groen. Ligging & omgeving: Woonwijk Het Heidemeer staat bekend om de combinatie van natuurlijke rust en stedelijke nabijheid. Direct aan de wijk ligt een 9-holes golfbaan, het Heidemeerstrand en een prachtig wandelgebied. Daarnaast liggen sportfaciliteiten zoals Thialf, padelbanen en fitness op loopafstand. Het centrum van Heerenveen, basisscholen, uitvalswegen en winkels zijn binnen enkele minuten bereikbaar. Bijzonderheden: - Bouwjaar: ca. 1995 - Perceeloppervlakte: 1.232 m² - Woonoppervlakte: ca. 160 m² - 4 slaapkamers en 1 badkamer - Inpandige garage + bergzolder - Kantoor op begane grond - Serre/extra living op begane grond - Vloerverwarming in de keuken en de badkamer - Waterontharder 'Aquacell' in de meterkast - Beschutte tuin op het zuiden - Uitstekende locatie in gewilde wijk. Ben je op zoek naar een comfortabele en ruime woning op een unieke locatie in Heerenveen? Dan is Golfpad 16 absoluut een bezichtiging waard. Neem contact met ons op voor een vrijblijvende rondleiding. Wij laten je graag zien wat deze woning allemaal te bieden heeft!

Kenmerken

De woning

Plaats Heerenveen
Adres Golfpad 16
Woningtype Vrijstaand
Bouwjaar 1996
Vraagprijs € 795.000 k.k
Woonoppervlakte 173 m2
Perceeloppervlakte 1232 m2
Energielabel B
Aantal kamers 7
Slaapkamers 4
Badkamers 1
Aan het water nee
Tuin ja
Terras/balkon ja
Garage ja
Lift nee
Kelder nee
Open haard nee

Woning op de kaart

In de buurt

Maaltijden bezorgdienst ja
Parkeerplaats 10 meter
Tandarts 240 meter
Restaurant 270 meter
Sportschool 550 meter
Openbaar vervoer 630 meter
Gebedshuis 860 meter
Speelvoorziening 1,3 kilometer
Recreatiemeer 1,7 kilometer
Strand 1,7 kilometer
Supermarkt 1,9 kilometer
Natuurgebied 1,9 kilometer
Basisschool 1,9 kilometer
Huisarts 2 kilometer
Pinautomaat 2,2 kilometer
Kinderdagverblijf 2,2 kilometer
Centrum 2,3 kilometer
Snelweg 2,5 kilometer
Zwembad 3,8 kilometer
Ziekenhuis 4,7 kilometer

Woning op de kaart

Onze partners
Funda (2)
Pararius Nl (1)
Flanderijn (1)
Easy Nuts
Geldxpert Hypotheken Verzekeringen
Huurcheck Nederland
Kuiper Verzekeringen
MYN Vastgoedstylist
Phogatropy
Schermafbeelding 2022 06 15 Om 09.13.04
Sancus Bouw & Infra Met Ondertitel
File 1566990895713