Verkocht onder voorbehoud
Golflaan 18 2
8445 SZ Heerenveen
€ 375.000 K.K.
Foto's 21 Video's 0 Plattegrond 4 Alle media tonen

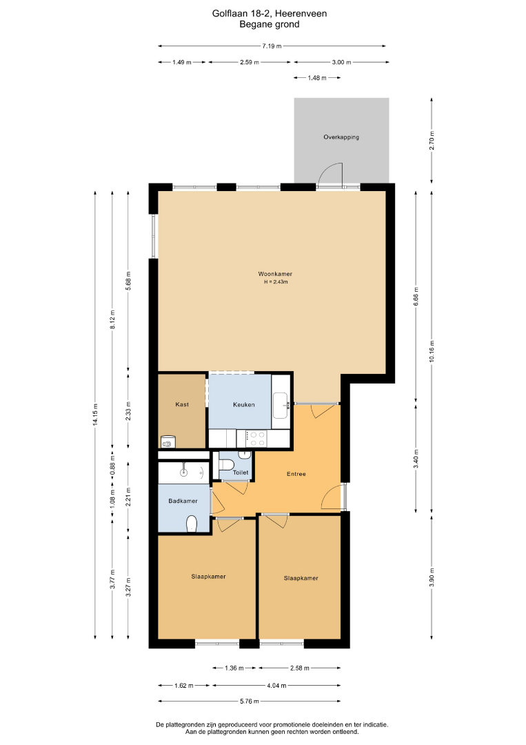
Omschrijving

Wakker worden met uitzicht op groen en genieten van rust, ruimte én comfort. Op een werkelijk schitterende plek, direct aan de golfbaan van het Golfresort Heidemeer in Heerenveen, ligt dit verrassend ruime 3-kamerappartement op de begane grond. Hier woon je midden in het groen, met alle rust om je heen en toch met alle voorzieningen binnen handbereik. De woning heeft weer liefde en aandacht nodig maar dan is deze ook weer geheel naar uw wens. Het hoogtepunt van deze woning? De ruime woonkamer met grote raampartijen en het royale terras, waar je heerlijk kunt genieten van het vrije uitzicht over de golfbaan. Een plek waar binnen en buiten naadloos in elkaar overlopen. Comfortabel en gelijkvloers wonen: Bij binnenkomst valt direct de prettige indeling en het gevoel van ruimte op. De royale woonkamer is heerlijk licht dankzij de grote raampartijen en vormt het hart van de woning. De openslaande deur naar het terras zorgt voor een fijne verbinding met buiten en maakt dit een ideale plek om te ontspannen of gasten te ontvangen. De open keuken sluit mooi aan op de living maar is wel aan vervanging toe. Aansluitend vind je een praktische bijkeuken met extra bergruimte en aansluitingen voor het witgoed. Het appartement beschikt over twee goed bemeten slaapkamers, waardoor het geschikt is voor zowel eigen gebruik, logees als bijvoorbeeld een thuiswerkplek. De badkamer is ingericht met een ligbad, wastafelmeubel en designradiator. Daarnaast is er een separaat toilet aanwezig. Wonen in het groen, dichtbij alles: De ligging op Golfresort Heidemeer maakt dit appartement extra bijzonder. Je woont hier in een rustige, parkachtige omgeving met volop natuur en recreatiemogelijkheden. Denk aan wandelen langs de golfbaan, sporten bij Thialf of ontspannen bij de nabijgelegen recreatieplas. Tegelijkertijd ben je met de auto binnen enkele minuten in het centrum van Heerenveen en zijn uitvalswegen richting de A32 en A7 snel bereikbaar. Pluspunten op een rij: - Begane grond appartement: comfortabel en gelijkvloers wonen - Ruim terras met prachtig uitzicht over de golfbaan - Lichte woonkamer met directe toegang naar buiten - Open keuken en praktische bijkeuken - Twee volwaardige slaapkamers - Badkamer en separaat toilet - Eigen fietsenberging - Actieve en gezonde VvE (bijdrage ca. € 225,19 per maand) - Gelegen in een rustige, groene en gewilde woonomgeving - Een plek om elke dag van te genieten Of je nu op zoek bent naar rust, comfort of een woning met een bijzonder uitzicht: dit appartement combineert het allemaal. Hier woon je op een unieke locatie waar elke dag voelt als een beetje vakantie. Kom het zelf ervaren en plan een bezichtiging – dit is wonen op z’n mooist in Heerenveen.

De woning

Plaats Heerenveen
Adres Golflaan 18 2
Woningtype Portiekflat
Bouwjaar 1999
Vraagprijs € 375.000 k.k
Woonoppervlakte 89 m2
Perceeloppervlakte 110 m2
Energielabel A
Aantal kamers 3
Slaapkamers 2
Badkamers 1
Aan het water nee
Tuin ja
Terras/balkon ja
Garage nee
Lift ja
Kelder nee
Open haard nee

Omschrijving

Wakker worden met uitzicht op groen en genieten van rust, ruimte én comfort. Op een werkelijk schitterende plek, direct aan de golfbaan van het Golfresort Heidemeer in Heerenveen, ligt dit verrassend ruime 3-kamerappartement op de begane grond. Hier woon je midden in het groen, met alle rust om je heen en toch met alle voorzieningen binnen handbereik. De woning heeft weer liefde en aandacht nodig maar dan is deze ook weer geheel naar uw wens. Het hoogtepunt van deze woning? De ruime woonkamer met grote raampartijen en het royale terras, waar je heerlijk kunt genieten van het vrije uitzicht over de golfbaan. Een plek waar binnen en buiten naadloos in elkaar overlopen. Comfortabel en gelijkvloers wonen: Bij binnenkomst valt direct de prettige indeling en het gevoel van ruimte op. De royale woonkamer is heerlijk licht dankzij de grote raampartijen en vormt het hart van de woning. De openslaande deur naar het terras zorgt voor een fijne verbinding met buiten en maakt dit een ideale plek om te ontspannen of gasten te ontvangen. De open keuken sluit mooi aan op de living maar is wel aan vervanging toe. Aansluitend vind je een praktische bijkeuken met extra bergruimte en aansluitingen voor het witgoed. Het appartement beschikt over twee goed bemeten slaapkamers, waardoor het geschikt is voor zowel eigen gebruik, logees als bijvoorbeeld een thuiswerkplek. De badkamer is ingericht met een ligbad, wastafelmeubel en designradiator. Daarnaast is er een separaat toilet aanwezig. Wonen in het groen, dichtbij alles: De ligging op Golfresort Heidemeer maakt dit appartement extra bijzonder. Je woont hier in een rustige, parkachtige omgeving met volop natuur en recreatiemogelijkheden. Denk aan wandelen langs de golfbaan, sporten bij Thialf of ontspannen bij de nabijgelegen recreatieplas. Tegelijkertijd ben je met de auto binnen enkele minuten in het centrum van Heerenveen en zijn uitvalswegen richting de A32 en A7 snel bereikbaar. Pluspunten op een rij: - Begane grond appartement: comfortabel en gelijkvloers wonen - Ruim terras met prachtig uitzicht over de golfbaan - Lichte woonkamer met directe toegang naar buiten - Open keuken en praktische bijkeuken - Twee volwaardige slaapkamers - Badkamer en separaat toilet - Eigen fietsenberging - Actieve en gezonde VvE (bijdrage ca. € 225,19 per maand) - Gelegen in een rustige, groene en gewilde woonomgeving - Een plek om elke dag van te genieten Of je nu op zoek bent naar rust, comfort of een woning met een bijzonder uitzicht: dit appartement combineert het allemaal. Hier woon je op een unieke locatie waar elke dag voelt als een beetje vakantie. Kom het zelf ervaren en plan een bezichtiging – dit is wonen op z’n mooist in Heerenveen.

Omschrijving

Wakker worden met uitzicht op groen en genieten van rust, ruimte én comfort. Op een werkelijk schitterende plek, direct aan de golfbaan van het Golfresort Heidemeer in Heerenveen, ligt dit verrassend ruime 3-kamerappartement op de begane grond. Hier woon je midden in het groen, met alle rust om je heen en toch met alle voorzieningen binnen handbereik. De woning heeft weer liefde en aandacht nodig maar dan is deze ook weer geheel naar uw wens. Het hoogtepunt van deze woning? De ruime woonkamer met grote raampartijen en het royale terras, waar je heerlijk kunt genieten van het vrije uitzicht over de golfbaan. Een plek waar binnen en buiten naadloos in elkaar overlopen. Comfortabel en gelijkvloers wonen: Bij binnenkomst valt direct de prettige indeling en het gevoel van ruimte op. De royale woonkamer is heerlijk licht dankzij de grote raampartijen en vormt het hart van de woning. De openslaande deur naar het terras zorgt voor een fijne verbinding met buiten en maakt dit een ideale plek om te ontspannen of gasten te ontvangen. De open keuken sluit mooi aan op de living maar is wel aan vervanging toe. Aansluitend vind je een praktische bijkeuken met extra bergruimte en aansluitingen voor het witgoed. Het appartement beschikt over twee goed bemeten slaapkamers, waardoor het geschikt is voor zowel eigen gebruik, logees als bijvoorbeeld een thuiswerkplek. De badkamer is ingericht met een ligbad, wastafelmeubel en designradiator. Daarnaast is er een separaat toilet aanwezig. Wonen in het groen, dichtbij alles: De ligging op Golfresort Heidemeer maakt dit appartement extra bijzonder. Je woont hier in een rustige, parkachtige omgeving met volop natuur en recreatiemogelijkheden. Denk aan wandelen langs de golfbaan, sporten bij Thialf of ontspannen bij de nabijgelegen recreatieplas. Tegelijkertijd ben je met de auto binnen enkele minuten in het centrum van Heerenveen en zijn uitvalswegen richting de A32 en A7 snel bereikbaar. Pluspunten op een rij: - Begane grond appartement: comfortabel en gelijkvloers wonen - Ruim terras met prachtig uitzicht over de golfbaan - Lichte woonkamer met directe toegang naar buiten - Open keuken en praktische bijkeuken - Twee volwaardige slaapkamers - Badkamer en separaat toilet - Eigen fietsenberging - Actieve en gezonde VvE (bijdrage ca. € 225,19 per maand) - Gelegen in een rustige, groene en gewilde woonomgeving - Een plek om elke dag van te genieten Of je nu op zoek bent naar rust, comfort of een woning met een bijzonder uitzicht: dit appartement combineert het allemaal. Hier woon je op een unieke locatie waar elke dag voelt als een beetje vakantie. Kom het zelf ervaren en plan een bezichtiging – dit is wonen op z’n mooist in Heerenveen.

Kenmerken

De woning

Plaats Heerenveen
Adres Golflaan 18 2
Woningtype Portiekflat
Bouwjaar 1999
Vraagprijs € 375.000 k.k
Woonoppervlakte 89 m2
Perceeloppervlakte 110 m2
Energielabel A
Aantal kamers 3
Slaapkamers 2
Badkamers 1
Aan het water nee
Tuin ja
Terras/balkon ja
Garage nee
Lift ja
Kelder nee
Open haard nee

Woning op de kaart

In de buurt

Maaltijden bezorgdienst ja
Restaurant 70 meter
Parkeerplaats 100 meter
Tandarts 450 meter
Openbaar vervoer 750 meter
Sportschool 1 kilometer
Gebedshuis 1,1 kilometer
Speelvoorziening 1,1 kilometer
Supermarkt 1,6 kilometer
Basisschool 1,7 kilometer
Huisarts 1,8 kilometer
Recreatiemeer 1,9 kilometer
Strand 1,9 kilometer
Centrum 1,9 kilometer
Pinautomaat 2 kilometer
Kinderdagverblijf 2 kilometer
Snelweg 2,3 kilometer
Natuurgebied 2,9 kilometer
Zwembad 3,6 kilometer
Ziekenhuis 4,5 kilometer

Woning op de kaart

Onze partners
Funda (2)
Pararius Nl (1)
Flanderijn (1)
Easy Nuts
Geldxpert Hypotheken Verzekeringen
Huurcheck Nederland
Kuiper Verzekeringen
MYN Vastgoedstylist
Phogatropy
Schermafbeelding 2022 06 15 Om 09.13.04
Sancus Bouw & Infra Met Ondertitel
File 1566990895713